 
  
        出售單價: 6518.6 元/平米
基本信息
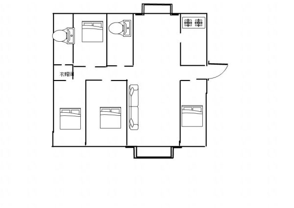
房屋戶型: 5 室3廳 1 廚2衛(wèi)
建筑面積:173.35㎡
使用面積:--㎡
房屋朝向:南北向
裝修情況:普裝
所在樓層:中樓層 (共8層)
房屋類型:小高層
建筑結(jié)構(gòu):鋼結(jié)構(gòu)
梯戶比例:1梯2戶
對口學(xué)校
學(xué)校名稱
學(xué)校地址
對口中學(xué)
 
                 
                 
                 
                 
                 
                 
                 
                 
                 
                 
                有任何稅費方面的問題,歡迎來電咨詢